Art.Nr.: 262648


Alle angebotenen Gewerbe-Artikel richten sich ausschließlich an Unternehmen im Sinne des § 14 BGB (gewerblicher Betrieb) Gewerbetreibende, Freiberufler, Behörden sowie kirchliche und soziale Einrichtungen. Privatpersonen sind vom Verkauf der Gewerbe-Artikel ausgeschlossen! Alle Spülenshop24 Shoppreise gelten inkl. der gesetzlich gültigen Mehrwertsteuer.
Waschtisch ALL-IN-ONE Waschplatzeinheit zum Wandeinbau barrierefreie Ausführung Vandalismus hemmend Kompletteinheit mit Gehäuse manuell zu betätigender Seifenspender Wandauslauf für Trinkwasser
- Modell: KWC PROFESSIONAL Heavy Duty Waschplatzeinheit ALIO335 Barrierefrei 2000101447
- Markenprodukt der Firma KWC
- Hochsicherheitsserie Waschplatzeinheit montierbar zur Unterputz-Wandmontage
- Heavy Duty ALL-IN-ONE Komplettlösung (Wasser, Seife)
- Material: Edelstahl / Materialtyp: 1.4301 CNS V2A
- Oberflächenbehandlung: gebürstet ..
- Oberflächenbehandlung des Beckens: satin-finished
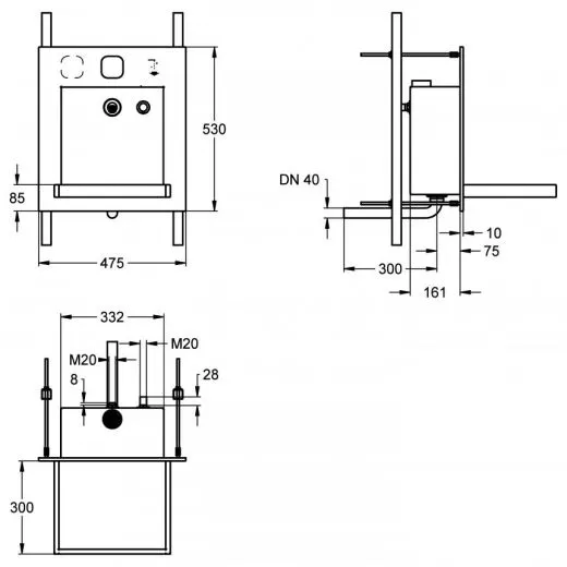
- Gesamtbreite: 475mm
- Gesamthöhe: 530mm
- Gesamttiefe: 470mm
- Beckenabmessungen: 330x450mm
- Beckentiefe:40mm
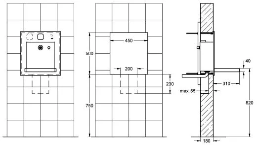
- Waschplatzeinheit zum Unterputz-Wandeinbau, Vandalismus hemmend, speziell geeignet für öffentliche Bereiche
- wie WC-Anlagen auf Parkplätzen und in Parkhäusern, Funktionskomponenten über Technikraum zugänglich
- Kompletteinheit im Gehäuse, Nutzungsraum und Becken aus Chromnickelstahl, Oberfläche gebürstet, verschweißt
- Gehäuse wandbündig im Benutzerraum montiert, Becken mit fugenlos eingeformten Siebablauf und Ablaufbogen DN 40
- manuell zu betätigender Seifenspender, Wandauslauf für Trinkwasser, Messing poliert verchromt, in der Rückwand
- mit zwei Bediensymbolen als Sensorschutz im Gehäuse für Steuerung, Wasserabgabe und Seifenspender
- Befestigungsmaterial, Gewindestangen und Stabilisierungsstreben zur Montage im Technikraum
- Notwendiges Zubehör: Elektronische Armaturenkomponenten für Waschplatzeinheit zur berührungslosen Steuerung AQUA121
- Seifentank zur wandseitigen Befestigung im Technikraum ZAQUA083
- Im Lieferumfang enthalten NUR die Waschplatzeinheit!
***Identisch FRANKE Aquarotter Produkte!
Grundsätzlich erfolgt die Lieferung aller "Gewerbespülen-Artikel" nur innerhalb Deutschlands mit Spedition. Eine Lieferung in das europäische Ausland ist nur auf Anfrage möglich!
Detaillierte Herstellerinformationen: 
Optionen:
- Gewerbe-Artikel im Sinne § 14 BGB: *KEIN VERKAUF AN PRIVATPERSONEN!
- ElektroG*: WEEE-Reg.-Nr. DE 53851237 (KWC)
- Lieferung***: NUR innerhalb Deutschlands*
- Bedienung: Berührungslos - opto-elektronische Steuerung
- Besonderheiten: Berührungsloser Sensor
- Material Edelstahl: 1.4301 CNS V2A (18/10)
- Notwendige Armaturkomponente: Bitte wählen
- Notwendige Armaturkomponente: AQUA121 (+867,24 €)
- Notwendiges Zubehör: Bitte wählen
- Notwendiges Zubehör: Seifentank ZAQUA083 (+299,00 €)
- Stromversorgung: Netzanschluss
Preis:
ab 2.573,95 €